- Woonoppervlakte
- Circa 152 mยฒ
- Perceeloppervlakte
- Circa 372 mยฒ
- Bouwjaar
- Gebouwd in 1983
- Aantal kamers
- 5 kamers (4 slaapkamers)
Hoogersmilde is gelegen aan de Drentsche Hoofdvaart en biedt diverse voorzieningen, waaronder een supermarkt, slagerij, basisschool, kinderopvang, meerdere speeltuintjes, een hertenkamp en sportaccommodaties. De woning heeft een centrale ligging in het dorp waardoor alle voorzieningen eigenlijk op loopafstand gelegen zijn. Het dorp ligt in een bosrijke en groene omgeving, nabij het Nationaal Park Het Drents-Friese Wold, en is centraal gelegen ten opzichte van de provinciale weg N381, ook bekend als de Emmen-Drachtenroute.
BEGANE GROND
Bij binnenkomst vindt u de hal met toilet, meterkast en trapopgang. De ruime woonkamer met open keuken (ca. 60 mยฒ) heeft volop lichtinval door de openslaande tuindeuren en een groot platdakraam. Er is een sfeervolle pelletkachel (ter overname) aanwezig. De open keuken is de afgelopen jaren vernieuwd; in 2023 zijn er nieuw blad en wandafwerking aangebracht, en de keuken is uitgerust met diverse inbouwapparatuur. Zo zijn er een 5-pits inductiekookplaat (2024), moderne AEG afzuigkap (2024), vaatwasser (2023), oven (2023) en koelkast (2022) aanwezig. De bijkeuken (ca. 7 mยฒ) met spoelbak en witgoedaansluiting geeft binnendoor toegang tot de garage.
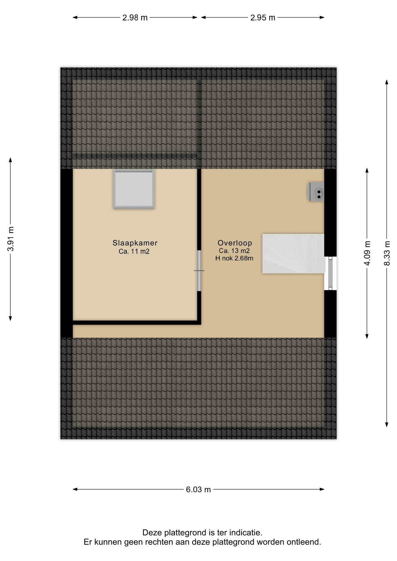
EERSTE VERDIEPING
Op de eerste verdieping bevinden zich de overloop en drie slaapkamers (ca. 15 mยฒ, ca. 12 mยฒ, ca. 10 mยฒ), evenals de badkamer met douche, dubbel wastafelmeubel en een tweede toilet.
TWEEDE VERDIEPING
De tweede verdieping biedt een extra slaapkamer en bergruimte, waar ook de CV-ketel is opgesteld. Daarnaast is er een tweede witgoedaansluiting aanwezig.
TUIN
De achtertuin ligt op het zuidwesten en is keurig onderhouden. Er is een overkapping die zorgt voor veel privacy. De houten berging (ca. 18 mยฒ) is voorzien van elektra en er is een eigen achterom.
BIJZONDERHEDEN EN STERKE PUNTEN:
- Uitgebouwde lichte woonkamer
- Ruime leefruimte voor een gezin
- Energielabel A, voorzien van zonnepanelen
- Gunstig gelegen in een kindvriendelijke buurt
- Centraal gelegen ten opzichte van de N381; Beilen en Assen liggen op ca. 15 km afstand
Overdracht
- Vraagprijs
- โฌ 385.000 k.k.
- Status
- Verkocht
- Aanvaarding
- In overleg
Bouw
- Object type
- Eengezinswoning, 2 onder 1 kapwoning
- Soort bouw
- Bestaande bouw
- Bouwjaar
- 1983
- Soort dak
- Zadeldak bedekt met pannen
Oppervlakte en inhoud
- Woonoppervlakte
- 152 mยฒ
- Perceeloppervlakte
- 372 mยฒ
- Inhoud
- 583 mยณ
- Overige inpandige ruimte
- 15 mยฒ
- Externe bergruimte
- 18 mยฒ
Indeling
- Aantal kamers
- 5 kamers (4 slaapkamers)
- Aantal badkamers
- 1 badkamer
- Badkamervoorzieningen
- Toilet, douche, dubbele wastafel, wastafelmeubel
- Aantal woonlagen
- 3 woonlagen
- Voorzieningen
- Mechanische ventilatie, buitenzonwering, rookkanaal, glasvezel kabel, zonnepanelen
Energie
- Energielabel
- A
- Energielabel registratie
- 04-06-2025
- Isolatie
- Vloerisolatie, gedeeltelijk dubbel glas
- Verwarming
- Cv-ketel, vloerverwarming gedeeltelijk, warmtepomp, pelletkachel
- Warm water
- Cv-ketel
- Cv ketel
- Vaillant combiketel gas gestookt uit 2018
Buitenruimte
- Ligging
- Aan rustige weg, in woonwijk, in bosrijke omgeving
- Tuin
- Achtertuin, voortuin
- Afmetingen achtertuin
- 160 mยฒ (16 meter diep en 10 meter breed)
- ligging tuin
- Gelegen op het zuidwesten en bereikbaar via achterom
Bergruimte
- Schuur / berging
- Vrijstaande houten berging
- Voorzieningen
- Voorzien van elektra
Garage
- Soort garage
- Aangebouwd steen
- Capaciteit
- 1 auto
- Voorzieningen
- Elektra
- Isolatie
- Geen spouw
Parkeergelegenheid
- Soort parkeergelegenheid
- Op eigen terrein
Energieverbruik in Hoogersmilde
Energielabel deze woning
Energielabel A
Publicatie energielabel: 04-06-2025
Stroomverbruik per jaar
(Gemiddelde twee onder een kap in Hoogersmilde)
Gasverbruik per jaar
(Gemiddelde twee onder een kap in Hoogersmilde)
* Cijfers zijn afkomstig van het CBS en bedoeld als indicatie en kunnen verschillen voor deze woning
Indicatie hypotheeklasten
Eigen inleg:
Spaargeld / overwaarde
Rente:
Laagste 10-jaars rente
Laagste 10-jaars rente
2,76% - Centraal Beheer Groen... - NHG
2,98% - Centraal Beheer Groen... - 80%
Laagste 20-jaars rente
3,19% - Centraal Beheer Groen... - NHG
3,31% - Centraal Beheer Groen... - 80%
Laagste 30-jaars rente
3,34% - Centraal Beheer Groen... - NHG
3,47% - Centraal Beheer Groen... - 80%
Hypotheek:
Bruto maandlasten: โฌ 0 p/m
Netto maandlasten: โฌ 0 p/m
Hoe berekenen we dit?
Het rentepercentage is gebaseerd op de laagste 10-jaars vaste rente voor รฉรฉn hypotheekdeel. De vermelde rente (2.76% met NHG) is gecontroleerd op 26-08-2025. Deze berekening is gebaseerd op een annuรฏteitenhypotheek die volledig wordt afgelost, waarbij de maandlasten gedurende de gehele looptijd gelijk blijven. De werkelijke rente en netto maandlasten kunnen variรซren, afhankelijk van uw persoonlijke situatie en de hypotheekverstrekker. Raadpleeg een financieel adviseur voor een nauwkeurige berekening en advies. Aan deze berekening kunnen geen rechten worden ontleend; het dient enkel als indicatie.
Documentatie
Kadastrale kaart
Leefomgeving
Plattegrond perceel
Lijst van zaken
Vragenlijst deel B
Energielabel
Plattegronden PDF
WOZ waarderapport
BAG uittreksel
Brochure
Bezoek onze website
Bezichtiging
Bod uitbrengen
Waardebepaling
Zoekopdracht
Alles downloaden
Zonnegrenzen bekijken
Op de kaart
Inwoners in Hoogersmilde
Cijfers voor postcodegebied 9423
- Totaal aantal inwoners
- 1320 inwoners
- Mannen
- 51%
- Vrouwen
- 49%
Inwoners in Hoogersmilde
Cijfers voor postcodegebied 9423
- tot 15 jaar
- 13%
- 15 tot 25 jaar
- 10%
- 25 tot 35 jaar
- 23%
- 45 tot 65 jaar
- 31%
- 65 en ouder
- 22%
Huishoudens in Hoogersmilde
Cijfers voor postcodegebied 9423
- Eenpersoons zonder kinderen
- 31%
- Meerpersoons zonder kinderen
- 38%
- Huishoudens zonder kinderen
- 69%
Huishoudens in Hoogersmilde
Cijfers voor postcodegebied 9423
- Huishoudens met รฉรฉn kind
- 5%
- Huishoudens met meerdere kinderen
- 26%
- Huishoudens met kinderen
- 31%
Woningen in Hoogersmilde
Cijfers voor postcodegebied 9423
- Woningen voor 1945
- 22%
- Woningen tussen 1945 en 1965
- 19%
- Woningen tussen 1965 en 1975
- 14%
- Woningen tussen 1975 en 1985
- 14%
- Woningen tussen 1985 en 1995
- 12%
Woningen in Hoogersmilde
Cijfers voor postcodegebied 9423
- Woningen tussen 1995 en 2005
- 5%
- Woningen tussen 2005 en 2015
- 14%
- Woningen na 2015
- 1%
- Huurwoningen
- 30%
- Koopwoningen
- 70%
Overige in Hoogersmilde
Cijfers voor postcodegebied 9423
- Gemiddelde WOZ waarde
- โฌ 201.000,-
- Personen onder de 65 met uitkering
- 8%
Overige in Hoogersmilde
Cijfers voor postcodegebied 9423
- Adressen per kmยฒ
- 143
- Stedelijkheid (schaal 1 op 5)
- 20%
Korte feiten over Hoogersmilde
Hoogersmilde is een dorp in de gemeente Midden-Drenthe, in de Nederlandse provincie Drenthe.
Groenhout Makelaars
Indien u vragen heeft of u wilt een bezichtiging inplannen, dan kunt u gebruik maken van het formulier hiernaast. Er zal daarna op korte termijn contact met u worden opgenomen.
Brink 4
9411 KR, Beilen
0593 23 21 21 midden-drenthe@groenhoutmakelaars.nl www.groenhoutmakelaars.nlContact opnemen
Dรฉ makelaar in Midden-Drenthe
Bij Groenhout Makelaars Midden-Drenthe staan we klaar om je te ondersteunen bij de verkoop van je huidige woning of de aankoop van je droomhuis. Onze diensten beperken zich niet tot Midden-Drenthe; we zijn ook actief in omliggende gemeentes. We hechten veel waarde aan flexibiliteit, dus afspraken zijn ook mogelijk in de avonduren en op zaterdagen. Dankzij zijn achtergrond in de financiรซle sector beschikt Richard over uitgebreide kennis op financieel gebied en hij is uiteraard op de hoogte van alle marktontwikkelingen. Als creatieve makelaars streven we ernaar om gestelde doelen op originele wijze te realiseren. We zijn gepassioneerd en gedreven in alles wat we doen, en we kennen de vastgoedsector door en door. Onze aanpak gaat verder dan de standaard kantooruren en omvat puur ondernemerschap. We richten ons niet alleen op zakelijke aspecten, maar ook op sociale elementen. We zijn alert op nieuwe trends en passen deze toe in onze werkwijze. Onze expertise staat garant voor jouw gemak.
Het is onze passie en ons sterke punt om uitdagingen aan te gaan en zo tot een optimale dienstverlening te komen, van begin tot eind en zelfs daarna! Neem eens een kijkje bij onze recensies; wellicht nodigt dit je uit voor een vrijblijvend gesprek?
Nieuwste reviews
-
Lijsterlaan 6
Zeer geschikte makelaar. Vriendelijk en eerlijk.Goed op de hoogte van de markt in Beilen en erg behulpzaam.Zeker goed om met ze in zee te ga...
-
Veldhuisweg 4 4
We zijn supergoed geholpen door Groenhout Makelaars midden Drenthe bij de verkoop van onze vakantiewoning. Alles verliep soepel, de communic...
-
Noordveen 27
We werden goed op de hoogte gehouden van het verloop van de verkoop en hadden veelvuldig contact met de makelaar.